FR 90 DRZWI
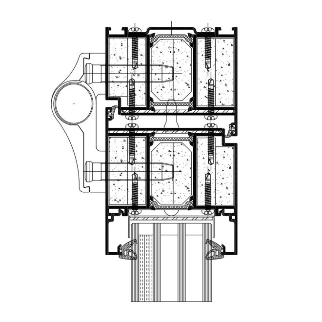
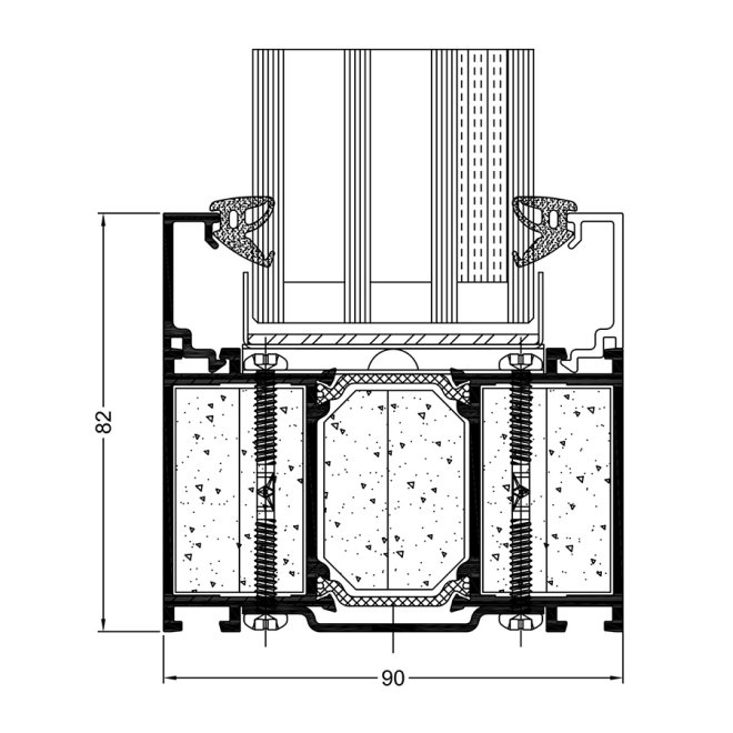
Izolowany termicznie system przeciwpożarowy; konstrukcje wykonane na bazie systemu FR90 charakteryzują się klasą odporności ogniowej ścian EI30, EI60, EI90, EL120, oraz drzwi w klasie odporności ogniowej EI30, EI60, EI90.
Opis
Dane techniczne
Opis
![]()
- charakterystyka systemu:
– zastosowanie: zabudowa wewnętrzna i zewnętrzna
– głębokość zabudowy 90 mm
– symetryczna budowa profilu, komora środkowa wypełniona wkładami gipsowymi (między przekładkami termicznymi): dla EI30, wszystkie komory wypełnione gipsem dla EI60
– system kompatybilny z systemami o głębokości zabudowy 90 mm (STAR)
– możliwość stosowania pakietu szybowego dwukomorowego (szklenie: od 20 mm do 69 mm)
– możliwość wypełnienia panelowego (panel o grubości 60 mm): panele z wypełnieniem wełną mineralną (Up=0,57 W/m2K), panele z wypełnieniem gipsowym
– konstrukcje: drzwiowe jedno- i dwuskrzydłowe, przeszklenia stałe
– możliwość wykonania konstrukcji o odporności ogniowej i dymoszczelnej
– możliwość wykonania konstrukcji drzwi do stosowania na drogach ewakuacyjnych
– maksymalne wymiary konstrukcji przebadanej: 6000 x 3000 mm (ścianka stała, jedna tafla szklana)
– maksymalne wymiary drzwi jednoskrzydłowych: 1650 x 2870 mm
– maksymalne wymiary drzwi dwuskrzydłowych: 3170 x 2870 mm
– zamki jedno- lub wielopunktowe, elektrozaczepy, okucia paniczne
– zawiasy nakładkowe, zawiasy rolkowe, zawiasy INOX
– możliwe do zastosowania rozwiązania progowe, bezprogowe
– kopniak (wysoki cokół)
– możliwość stosowania kratki wentylacyjnej
– optymalizacja profili (jeden rodzaj profili do ramy drzwiowej i skrzydła)
– szybka i prosta prefabrykacja (brak obróbki listwy szklącej) - akustyka – badania akustyczne na drzwi dwuskrzydłowe o odporności ogniowej EI30, EI60 zabudowy wewnętrzne i zewnętrzne: od 39 do 47 dB
- szeroki wybór kolorystyki – paleta RAL (Qualicoat 1518), kolory strukturalne, Aliplast Wood Colour Effect – kolory drewnopodobne, Aliplast Loft View – kolory imitujące kamienne powierzchnie (Qualideco PL-0001), anoda (Qualanod 1808), bikolor
Dane techniczne



