Drzwi przesuwne automatyczne
FR 90 SLIDE
Izolowany termicznie system drzwi przesuwnych, automatycznych przeciwpożarowych. Konstrukcje wykonane na bazie systemu FR90 charakteryzują się klasą odporności ogniowej EI30 według norm: PN-EN 13501-2:2016-07; PN-EN 1634-1+A1:2018-03.
Opis
Dane techniczne
Opis
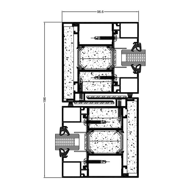
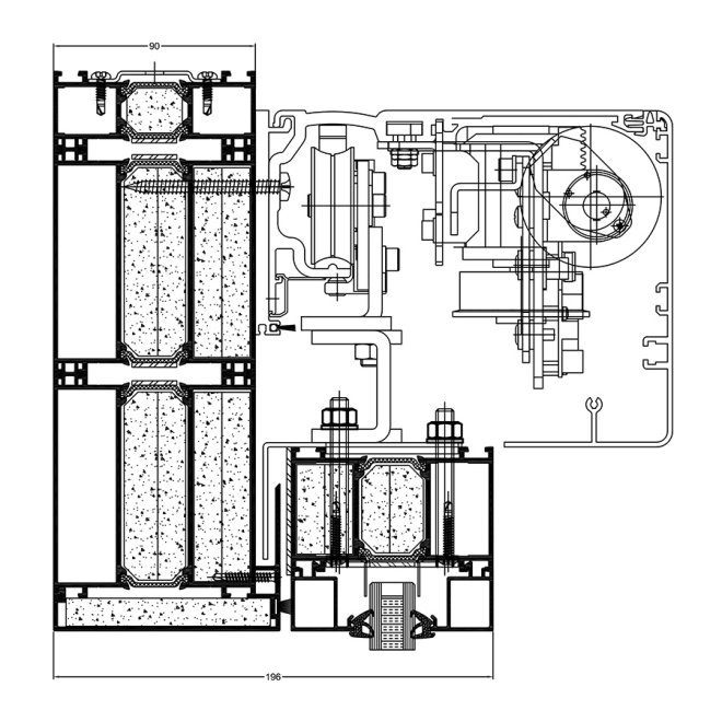
![]()
- odpowiednie komory profili wypełnione są wkładami ogniochronnymi
- uniwersalność i unifikacja profili z systemem FR90
- estetyczne połączenie labiryntowe skrzydeł
- symetryczne szklenie
- wymiary maksymalne konstrukcji: szer. 4900 x wys. 3500 mm
- wymiary maksymalne szyby skrzydła: 1193,5 x 2339 mm
- wymiary maksymalne skrzydła: 1369 x 2472 mm (skrzydło z „piórem”)
- dedykowana automatyka DORMA, CEZE
- budowa konstrukcji: drzwi jednoskrzydłowe i dwuskrzydłowe, drzwi rozsuwane, drzwi z doświetlami bocznymi i górnymi
- szeroki wybór kolorystyki – paleta RAL (Qualicoat 1518), kolory strukturalne, Aliplast Wood Colour Effect – kolory drewnopodobne, Aliplast Loft View – kolory imitujące kamienne powierzchnie (Qualideco PL-0001), anoda (Qualanod 1808), bikolor
Dane techniczne
SPECYFIKACJA PRODUKTU
| SYSTEM | MAX WYMIARY SKRZYDŁA DRZWI (L X H MM) | MAX WYMIARY SZYBY SKRZYDŁA | TYP KONSTRUKCJI | KLASA ODPORNOŚCI OGNIOWEJ |
| FR90 SLIDE | 1369 x 2472 mm | 1193,5 x 2339 mm | drzwi jedno- i dwuskrzydłowe, rozsuwane, z doświetlami bocznym i górnymi | EI 30 /PN-EN 13501-2:2016-07; PN-EN 1634-1+A1:2018-03 |

