Star
- Nowoczesny system aluminiowy do projektowania okien i drzwi wymagających bardzo dobrej izolacji termicznej.
Opis
Dane techniczne
Opis
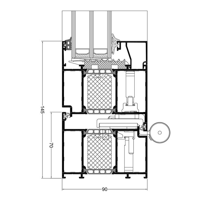
![]()
- – przekładka termiczna o głębokości 45 mm, wykonana z solidnych i sprawdzonych materiałów, stanowi niezawodną barierę ciepłochronną
- – ten sam rodzaj wkładu izolacyjnego w skrzydle okiennym oraz w ramie okiennej zapewnia ciągłość ochrony przed stratami ciepła całej konstrukcji
- – nowy standard zachodzenia profila z szybą – zwiększona głębokość polepsza właściwości termiczne i konstrukcyjne systemu
- – zastosowany nowy typ narożnika, unikający kolizji wkręt/narożnik podczas przykręcania nawierzchniowych elementów okuć pod rowek PVC
- – możliwość okuwania drzwi systemem zawiasów rolkowych o bardzo dużej nośności
- – innowacyjny system odprowadzenia wody z konstrukcji (brak widocznych elementów zaślepiających otwory odwodnieniowe)
- – ten sam typ narożnika i łącznika typu T w komorze zewnętrznej i wewnętrznej (redukcja ilości akcesoriów i szybsza fabrykacja)
- – zmniejszona ilość listew szklących oraz uszczelek przy zachowaniu ciągłości szklenia w zależności od grubości pakietów
- – możliwość szklenia od zewnątrz
- możliwość gięcia profili (dokładna specyfikacja profili oraz szczegóły dotyczące parametrów technicznych gięcia profili – dostępne w strefie autoryzowanej na stronie www.aliplast.pl)
- – nowoczesny design
- – system jest szczególnie rekomendowany do budynków niskoenergetycznych i poddawanych termomodernizacji, podnoszą komfort cieplny również w standardowych obiektach
- – istnieje możliwość montażu systemu Flyscreen oraz Insect System (systemy moskitier przeciwko owadom)
- – szeroki wybór kolorystyki – paleta RAL (Qualicoat 1518), kolory strukturalne, Aliplast Wood Colour Effect – kolory drewnopodobne, Aliplast Loft View – kolory imitujące kamienne powierzchnie (Qualideco PL-0001), anoda (Qualanod 1808), bikolor
Dane techniczne
SPECYFIKACJA PRODUKTU
| SYSTEM | MATERIAŁ |
GŁĘBOKOŚĆ OŚCIEŻNICY |
GŁĘBOKOŚĆ SKRZYDŁA |
GRUBOŚĆ SZKLENIA | AKUSTYKA | TYP OKIEN | TYP DRZWI |
| GT okno | aluminium / materiał izolacyjny | 90 mm | 99 mm | fix 14-72 mm / 23-81 mm | 48 (-2,-5) dB | ścianki, okna stałe, rozwierno-uchylne | – |
| GT drzwi | aluminium / materiał izolacyjny | 90 mm | 99 mm | 14-72 mm | 45 (-1,-3) dB | – | jedno,dwu-skrzydłowe otwierane na zewnątrz, otwierane do wewnątrz |
DANE TECHNICZNE
| SYSTEM | IZOLACYJNOŚĆ TERMICZNA UF* |
PRZEPUSZCZALNOŚĆ POWIETRZA |
OBCIĄŻENIE WIATREM |
WODOSZCZELNOŚĆ |
| GT okno | Uf od 0,73 W/m2K | Klasa 4; PN-EN 12207 | Klasa C5/B5; PN-EN 12210 | Klasa E900; PN-EN 12208 |
| GT drzwi | Uf od 1,21 W/m2K | Klasa 4; PN-EN 12207 | Klasa C5/B5; PN-EN 12210 | Klasa E1350; PN-EN 12208 |
*Izolacyjność termiczna uzależniona jest od kombinacji złożeń profili oraz grubości wypełnienia

